
【1】配有***冷凝換熱器,實測熱效率達103%;
【2】選配分體式低氮燃燒器,氮氧化物排放可低于30mg;
【3】PLC可編程控制,輕松實現***集群控制和物流網智能控制;
【4】配置***空氣預熱器,燃料燃盡率高達100%。

冷凝燃氣蒸汽鍋爐適用范圍
功率范圍:1t/h~25t/h 適用燃料:天然氣 燃燒方式:微正壓燃燒
低氮解決方案:CAVALLO卡瓦諾變頻分體式低氮燃燒器 + FGR
NOX排放:NOx≤30mg 熱效率:熱效率≥103%
適用范圍:
1. 適用于所有制藥、造紙、煙草、印染、制衣等工業用戶;餐飲、醫院消毒、桑拿中心、洗衣中心等商用途徑;
2. 同時可為汽-水換熱器加熱采暖系統提供熱水、為溴化鋰吸收方式制冷機提供動力。
冷凝燃氣蒸汽鍋爐概述
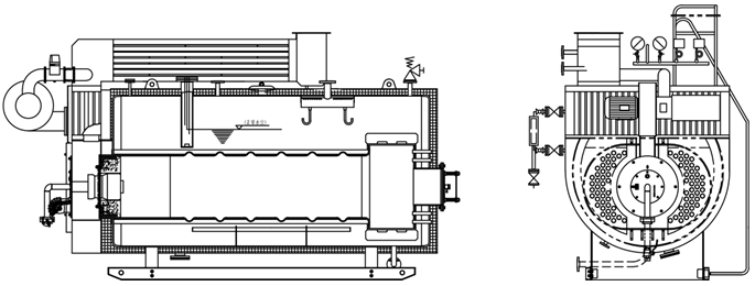
上能超低氮冷凝余熱回收燃氣蒸汽鍋爐,采用***率低應力臥式濕背內燃煙氣二回程結構,配置***空氣預熱器和節能冷凝一體機;圓弧形對開爐門設計,運用大爐膛全混合燃燒和***螺紋煙管傳熱;首創低氮耦合,爐內獨有四級低氮燃燒技術,***抑制NOx生成;配置瑞士ABB變頻器,意大利CAVALLO卡瓦諾變頻分體式超低氮燃燒器,7英寸液晶觸摸屏與高性能PLC可編程控制器,實現鍋爐NOx≤30mg的超低排放標準。

冷凝燃氣蒸汽鍋爐工作原理
鍋爐采用大容積全波紋爐膽,濕背式跑道型回燃室,全螺紋煙管對稱且均勻布置在爐膽兩側。Cavallo卡瓦諾變頻分體式超低氮燃燒器提供燃料燃燒,噴出的火焰在爐膽內湍流燃燒。產生的高溫煙氣經回燃室折返,進入螺紋煙管,***換熱后,由前煙箱進入空氣預熱器,煙氣逆流換熱,加熱冷空氣;降溫的煙氣順流進入節能冷凝一體機,煙氣逆流通過錯排的硅鎂鋁合金翅片管擴展受熱面,回收煙氣潛熱和顯熱,預熱鍋爐給水溫度,熱量極限回收后的煙氣經煙囪排入大氣。

冷凝燃氣蒸汽鍋爐性能特點
上能超低氮冷凝余熱回收燃氣蒸汽鍋爐,采用***率低應力臥式濕背內燃煙氣二回程結構,將大量低溫受熱面布置在本體受壓區外,加大蒸汽空間提高蒸汽干燥度,降低鍋爐熱應力,避免鍋爐本體內冷凝腐蝕,從而提高本體熱效率。且注重頂層設計,將鍋爐本體、空氣預熱器、節能冷凝一體機、CAVALLO卡瓦諾變頻分體式超低氮燃燒器、智能控制系統進行集成。

管路系統簡單可靠,減少安裝占地面積,煙氣通道簡潔流暢。低溫冷凝極限回收燃料的同時,提升鍋爐大熱效率高達103%,實現30mg超低氮排放。
【1】二回程結構設計
鍋爐優化設計為跑道型回燃室,二回程管束,有效增大蒸汽空間,提高蒸汽干燥度。
【2】超大波紋爐膽
爐水受熱均勻,水位、汽壓更加穩定;
增大燃燒空間,降低火焰溫度,實現NOx≤30mg的超低排放標準。
【3】意大利Cavallo卡瓦諾懸臂式風機及不銹鋼消音器
體積小、重量輕、風壓/風量穩定;增加了消音裝置,超長壽命、超低噪音。
【4】節能冷凝一體機
極限回收煙氣中的顯熱和水蒸汽凝結后的汽化潛熱,提高給水溫度,降低排煙溫度,節省燃氣費用,有效提升鍋爐熱效率高達103%;采用***ND鋼+硅鎂鋁合金纏繞復合翅片管,傳熱性能高,耐腐蝕性強。

【5】空氣預熱器
低溫情況下可快速啟動,迅速加熱空氣;
換熱強度高,抗腐蝕性強;
雙向純逆流換熱模式,瞬間提高空氣溫度,加速燃燒,燃燒效率高達100%。
【6】Cavallo卡瓦諾變頻分體式超低氮燃燒器
意大利Cavallo卡瓦諾超低氮燃燒器,擁有低氧式、分布式、循環式、分級式四級燃燒技術;
結合煙氣再循環西門子FGR技術,實現30mg超低氮排放;
采用瑞士ABB變頻器,實現變頻比例控制燃燒,***節能。
【7】變頻給水
給水穩定;爐水波動小;蒸汽壓力穩定;蒸汽干燥度高
【8】PLC智能控制器
采用7英寸液晶顯示觸摸屏,與高性能可編程PLC控制器匹配;
具備高低水位/超壓/超溫報警等聯鎖安全防護功能,可有效實時記錄鍋爐運行狀態,***監控鍋爐運行安全。

冷凝燃氣蒸汽鍋爐供熱系統圖
冷凝燃氣蒸汽鍋爐技術參數

客戶如有需求燃氣蒸汽鍋爐,請聯系公司熱能***人士芮先生,聯系電話:0519-82052399,