
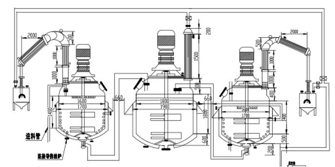
化工反應釜有夾套式或者盤管式的構成形式,一般都有攪拌器來保證反應釜內溫度加熱均勻。

導熱油加熱反應釜的工作原理是用燃氣導熱油爐加熱反應釜夾套或者盤管里的熱傳導油,使熱傳導油溫度升到用戶所需求的工藝溫度,而后有測溫電器元件使其調節控制導熱油爐的出油溫度。反應釜的溫度控制主要有升溫和降溫兩種(視內部是放熱反應還是吸熱反應)。
常州市上能鍋爐有限公司成立于2009年,公司注冊地:常州市鐘樓區常新路8號,公司法人:芮亞平,統一社會信用代碼:91320404688309726R,工廠地址:江蘇省常州高新區黃河西路225號,占地面積3.8萬m2,建筑面積2.5萬m2,長期固定定編員工100人(外包工、臨時工除外),其中工程技術管理人員占30%以上,是熱載體爐(燃氣導熱油爐,燃氣熔鹽爐,,燃氣真空熱水鍋爐,高壓電極熱水爐,能源熱能中心,電加熱器)研發,設計、制造,銷售,售后服務為一體的***公司。公司產品暢銷全國近三十多個省、市、自治區以及出口中亞、非洲等國家和地區。

![]() |
隨著公司多年的努力與發展,常州市上能鍋爐有限公司已成為在工業加熱和工藝溫度控制行業內的高新企業。在產品設計的過程中,采用新的(三維設計和CAD輔助設計)技術,及熱載體爐的優化流程;除了能提供標準的產品外,我們還能跟據客戶的實際需求,為客戶項目量身定制高品質加熱系統的成套解決方案.從用戶的實際需要出發,專門設計,制造完全適合用戶需求的用熱自動化加熱爐設備和用熱系統,以達到***完整的效果。
常州市上能鍋爐有限公司緊跟國家產業環保政策,專注研發設計制造的燃氣導熱油爐,燃氣熔鹽爐,能源熱能中心產品,形成了自己獨特的優點,產品節省使用成本,低氮環保,安全,易操作,使用壽命長,為用戶創造價值,贏得用戶的高度好評。
本公司真誠的期待與您攜手合作雙贏,共創輝煌!
敬請關注我公司的網站:www.czsngl.com www.xinyidafrp.cn www.czrsgl.com www.rsdryl.com 聯系電話:13815029577